2022-07-08 15:48:42
趙雨
830
【摘要】:消防應急照明和疏散指示系統由控制器、集中電源/配電箱和燈具(疏散指示燈具、應急照明燈具)等幾部分組成。系統采用Windonws7系統,可支持聯動報警、系統監控、故障報警、自檢、備電、記錄存儲與查詢、導光流、權限控制等多項功能,具有集中控制、靈活性高和可靠性強等特點。配合多種安裝方式、多種防護等*的標志燈和照明燈,適用于建筑區域內部防火分區多、燈具回路較長的化工廠項目。
【關鍵詞】:集中電源;集中控制;消防應急照明和疏散指示系統;化工廠
0.前言
隨著經濟、科技的迅猛發展,人們開始追求建筑設施的人性化、合理化,大量高層特大型建筑,及地下建筑的涌現導致建筑物通道更長、更復雜。隨著人們安全意識的提高,本著以人為本、生命安全為重的想法,對于人員密集、疏散距離長、疏散通道多、拐彎多、環境復雜的建筑,采用傳統的疏散指示方式不能及時對燈具進行維護管理,火災發生時,對人員的疏散和逃生無法進行合理的指引,故而實施迅速合理的安全疏散系統,引導人員的及時逃生是避免造成群死群傷的重要措施,這樣集中控制型應急照明和疏散指示系統應運而生。
集中控制型消防應急照明和疏散指示系統可準確實現對各應急燈具的實時監控和控制、日常24小時管理維護,保證系統運行正常,在發生火災時安全、準確、迅速的引導人員到達安全區域,減少人員傷亡。
1.行業介紹
1.1 行業背景
化工在各國的國民經濟中占有重要地位,是許多國家的基礎產業和支柱產業。化學工業的發展速度和規模對社會經濟的各個部門有著直接影響。化工企業由于其生產過程中,物料一般具有有毒、易燃易爆等特性,產業現場建筑結構復雜,危化品多,具有相當大的危險性。且該類型企業通常都是消防主要安全監管單位,一旦發生火災危險性更高,消防應急照明和疏散指示系統的合理、合理、可靠、安全是在事故發生時保障人員安全的可靠手段。
1.2 行業標準
? 《消防應急照明和疏散指示系統技術標準》 GB51309-2018
? 《消防應急照明和疏散指示系統》 GB17945-2010
? 《火災自動報警系統設計規范》 GB50116-2013
? 《石油化工企業設計防火標準》 GB50160-2008(2018版)
? 《精細化工企業工程設計防火標準》 GB51283-2020
? 《爆炸危險環境電力裝置設計規范》 GB50058-2014
? 《建筑設計防火規范》 GB50016-2014
1.3 區域劃分及區域特點
廠區通常由生產區、公用和輔助生產設施區及生產管理區組成的區域。
生產區:由使用、產生可燃物質和可能散發可讓氣體的工藝裝置或設施組成的區域。
公用和輔助生產設施:不直接參與石油化工生產過程,在石油化工的生產過程中對生產起輔助作用的必要設施。
封閉式廠房(庫房):設有屋*、建筑外圍結構全部采用封閉式墻體(含門、窗)構造的生產性(存儲性)建筑物。
半敞開式廠房:設有屋*、建筑外圍護結構局部采用封閉式墻體,所占面積不超過該建筑外圍表面積的1/2(不含屋*的面積)的的生產性建筑物。
敞開式廠房:設有屋*,不設建筑外圍護結構的生產性建筑。
裝置罐區:在裝置的生產過程中,不直接參加工藝過程,但工藝要求,為了平衡生產、產品質量檢測或一次投入等需要在裝置內布置的儲罐(組)。

2. 項目介紹
2.1 項目簡介
本項目是化工項目,包含巡檢休息室、制氮廠房、硫銨倉庫等區域,本司負責該工廠二期的應急照明和疏散指示系統,當火災發事故發生時,可通過火災監控報警系統的設備,檢測到具體的火災位置,并以通信方式將指令傳輸*本系統的疏散控制器,以控制場所內疏散標志的箭頭指向,確保人員沿正確的方向逃生及疏散。
2.2 項目難點、特殊點
化工企業由于其生產過程中,物料一般具有有毒、易燃易爆等特性,產業現場建筑結構復雜,危化品多,具有相當大的危險性,不同區域對應的燈具防護等*和類型要求不同。
2.3 項目選型
2.3.1 應急照明控制器

2.3.2 應急照明集中電源

2.3.3 燈具

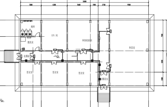
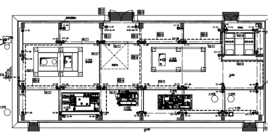
2.4現場部分平面圖

巡檢休息室部分平面圖

倉庫部分平面圖
2.5 現場應用照片




3. 系統方案介紹
3.1 方案拓撲
針對上述行業特點,系統設計一般考慮設計集中控制型的系統。控制器設置于消防控制室;再根據現場的區域是否有配電間、強電井、電纜豎井等區域,選擇集中電源或配電箱。工業廠房區域常規層高小于8m,罐區等露天的區域根據疏散過道或疏散樓梯,常規燈具選擇A型燈具。由此構成的系統拓撲如下圖所示:

拓撲圖
3.2 系統軟件運行界面及功能
系統運行主界面

包含工具欄、平面展示、圖層列表、狀態欄,可以直觀的查看監控設備的運行狀態,并根據狀態欄的現實內容直接切換*故障具體位置。
燈具配置界面

可以查看所有燈具狀態與數量
事件記錄界面

可查看歷史操作、故障信息,可按日期進行查詢
3.3 區域產品使用需求

3.4 系統組成
消防應急照明與疏散指示系統由控制器(主機)、集中電源/配電箱和燈具(疏散指示燈具、應急照明燈具)等幾部分組成。

控制器是消防應急照明和疏散指示系統的系統主機。控制器通過總線網絡實時監控各個終端,可以實時上報每個設備及燈具故障。在險情發生時,自動將信息指令發布到每個終端,終端收到指令之后開始工作,如頻閃、開、滅燈等工作,實時指示安全的疏散路線。
集中電源是安裝在建筑物內的備用集中式應急電源裝置。當建筑物發生火災、事故或其他緊急情況時,應急電源可以為消防標志燈、照明燈提供應急供電,保證消防應急照明和疏散指示正常工作。
配電箱是安裝在建筑物內的提供電源裝置。當建筑物發生火災、事故或其他緊急情況時,配電箱可以為消防標志燈、照明燈供電,保證消防應急照明和疏散指示系統正常工作。
照明燈具為人員疏散逃生提供照明。其安裝方式有壁掛式、吸*式、嵌*式。
指示燈具為人員疏散逃生指引方向,左向、右向和雙向的標志燈具一般用于指示疏散的走向,無方向的標志燈具一般用于指示安全出口、樓層和避難間。其安裝方式有壁掛式、吊掛式、地埋式。
4. 結束語
隨著我國經濟的快速發展和科技不斷的進步,建筑智能化及建筑消防的重視程度也隨之提高,本文簡單介紹了本司對化工行業的消防應急照明和疏散指示的系統方案,并結合已完成的項目分析了該方案在實際項目中的應用,充分展現了在該類項目的組網中簡單、靈活、穩定、低成本的*勢。通過該系統能夠解決傳統消防應急疏散指示系統無集中控制、指示方向固定、疏散線路不能改變、指示效果不理想、安全性能低等問題。
安科瑞電氣著力打造各類火災安防系統的產品,在滿足國家行業標準要求的前提下,為各類建筑提供智能、合理、節能、廉價的消防方案與消防產品,為防火減災、保障人民生命財產安全方面盡一份力!
參考文獻
[1].安科瑞電氣股份有限公司產品選型手冊.2018.01
[2].GB50116-2014 建筑設計防火規范[S].
[3].GB17945-2010《消防應急照明和疏散指示系統》[S].
[4].GB51309-2018《消防應急照明和疏散指示系統技術標準》[S].